サンレジデンス錦綾東堀川
この物件のお支払い例 頭金/ボーナス払い0円 頭金0円
- 物件価格
- 3,280万円
- 月々の支払い
(初回お支払額)
-
{{ monthlyPayment?.toLocaleString() }}円
※上記支払例の借入条件:金利{{ loanInterestRate }}%、借入総額3,280万円(うちボーナス払い{{ loanBonusMan }}{{ loanBonusUnit }}円)、借入期間{{ loanTerm }}年、{{ loanPaymentMethodName }}返済方式、ボーナス支払額(初回){{ bonusPayment?.toLocaleString() }}円
中古+リノベーションのお支払い例
| プラン | |
|---|---|
| 頭 金 | 万円 |
月々のお支払い(計算中){{ reformPlanMonthlyPayment?.toLocaleString() }}円
ボーナス払い(計算中){{ reformPlanBonusPayment?.toLocaleString() }}円
※上記支払例の借入条件:金利{{ loanInterestRate }}%、借入総額{{ reformPlanLoanBorrowingMan?.toLocaleString() }}万円(うちボーナス払い{{ loanBonusMan }}{{ loanBonusUnit }}円)、借入期間{{ loanTerm }}年、{{ loanPaymentMethodName }}返済方式、初回お支払い額
所在地・交通
| 所在地 | 京都府京都市上京区東堀川通一条上る竪富田町 サンレジデンス錦綾東堀川 | ||
|---|---|---|---|
| 交通 |
京都市営地下鉄烏丸線 今出川駅 徒歩10分 京都市営地下鉄烏丸線 丸太町駅 徒歩21分 |
その他交通 | |
| 小学校校区 | 中学校校区 | ||
※学校区は住所から自動判定したものであり、保証できる情報ではございません。正確な学校区はお問い合わせ下さい。
「人型アイコン」を地図上にドラッグすることで『Google ストリートビュー』に切り替わります。
※地図上の「対象地」は実際の場所ではない場合がございます。詳しくはお問い合わせください。
物件概要
| 価格 | 3,280万円 | 種目 | 中古マンション |
|---|---|---|---|
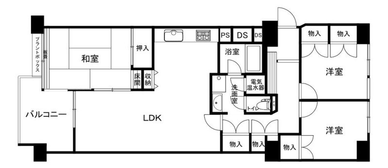
| 間取り | 3LDK | 間取り向き | |
| 専有面積 | 85.15㎡(壁芯) | 建物構造 | 鉄骨鉄筋コンクリート(SRC) |
| バルコニー面積 | 9.01㎡ | バルコニー向き | 西 |
| 階数 | 11階建 (地下2階建) | 所在階 | 3階 |
| 築年月(竣工月) | 1982年 11月 | 駐車場 | 空無 |
| 総戸数・総区画数 | 182 | 販売戸数・販売区画数 | |
| 管理費 | 11,620円 | 積立金 | 21,700円 |
| 管理形態/管理方式 | 全部委託/ 日勤 | ||
| 建ぺい率/容積率 | 都市計画 | ||
| 土地権利 | 所有権 | 地勢 | |
| 用途地域 | 商業 | 国土法 | |
| 現況 | 空家 | 取引態様 | 媒介 |
| 建築確認番号 | |||
取引条件等
| 引渡し | 相談 |
|---|
その他
| 設備 | 都市ガス、システムキッチン、バス・トイレ別、温水洗浄便座、洗面所、洗面台、室内洗濯機置場、エレベータ、○2020年1月リフォーム済み(キッチン・浴室・トイレ・電気温水器交換、全室クロス張り替え) ○エレベーター非停止階 ○キッチンはガスコンロあり | ||
|---|---|---|---|
| 特徴 | |||
| 諸条件・相談 | |||
| 情報登録日 | 2025年12月2日 | 情報更新予定日 | 2026年3月14日 |
| 物件番号 | 777347 | ||